the amethyst

one bed floorplans

A modern 1-bedroom, 1-bath middle townhome in Westerra, Regina.

l

the floorplan

FLOORPLAN DETAILS

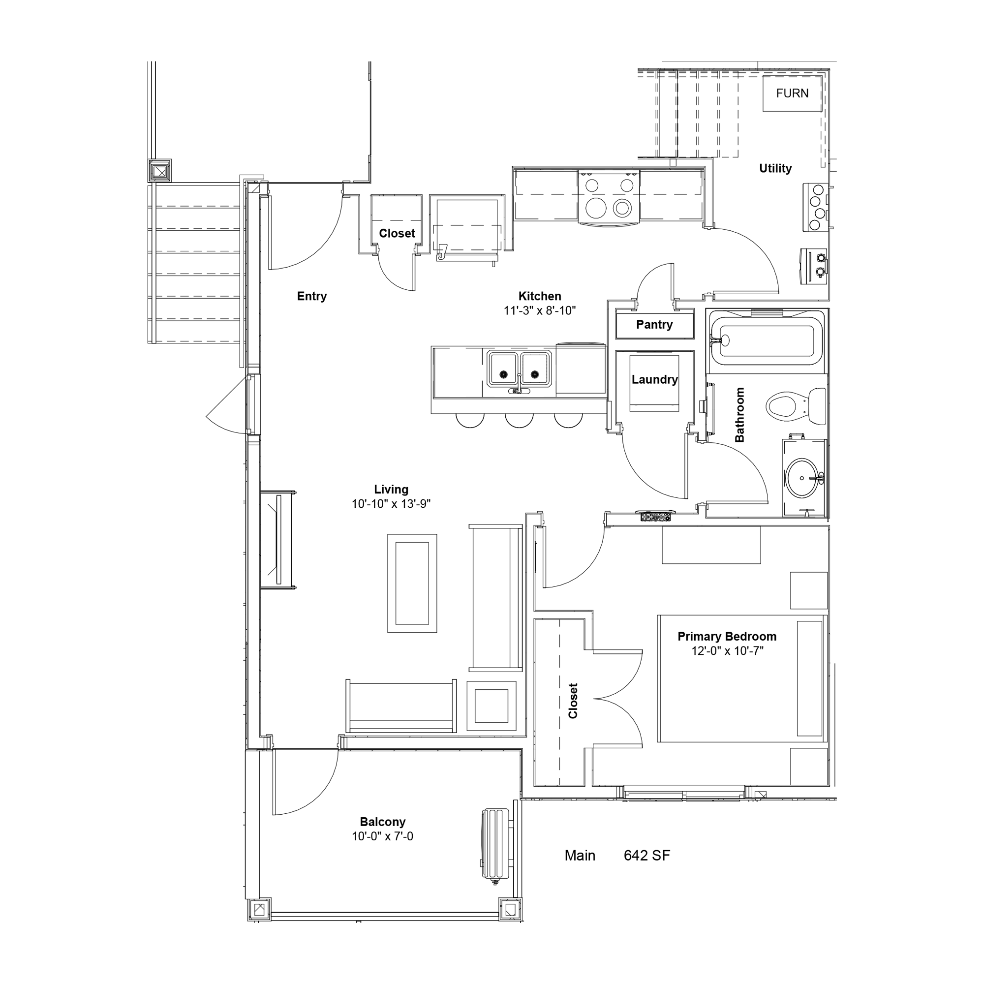
The Amethyst is a modern 1-bedroom, 1-bath townhome at Westmarket, offering 642 sq. ft. of well-planned living space. The open-concept kitchen, living, and dining areas flow together seamlessly, creating a bright and welcoming environment. Finished with contemporary details throughout, Amethyst is ideal for both everyday living and entertaining.

join the waitlist

Join the waitlist and get priority updates as availability opens up. It’s the easiest way to stay informed and be first in line when your ideal layout becomes available.

7 + 15 =

The Emerald

1,403 SQ. FT. | 3 BEDS | 3 BATHS

The Opal

1,374 SQ. FT. | 2 BEDS | 3 BATHS

AVAILABLE NOW

BOOK A VIEWING